Hjem
Prosjekter
Tjenester
Om oss
Kontakt
Personvern
Prj1 Museum Kunstgalleri
Prj2Norva 24
Prj3Sammenslåing
Prj4Fasadeendring
Prj5Moelven Park BT
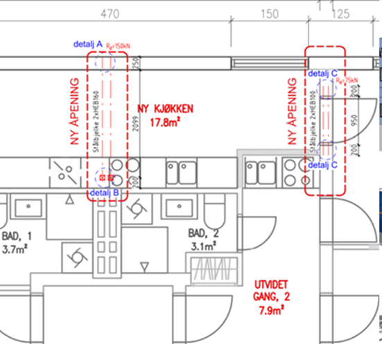
Sammenslåing av 2 leiligheter (H0301 og H0302) i 3.etg
Bygningstype
Blokk/bygård/Terrassehus
Ferdigstilt
2019
Kommune
Oslo